LIG Imóveis - Leandro Gonçalves Imóveis

Lugar de bons negócios

CRECI-MGJ0009635

CNAI 21.664

Imóvel à Venda LIG-681

Studios Residencial Milão

Rua Profa. Mary Pinto Coelho Campos - Alfa Sul - Manhuaçu

1 Quarto | 30,74 e 37,75 m²

02 Studios sendo edificados na Rua Profa. Mary Pinto Coelho Campos, no Bairro Alfa Sul em Manhuaçu-MG

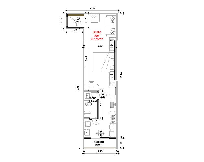
Studio 304 com 37,75 m² contendo: Um quarto, banheiro social, cozinha e área de serviço.
Studio 505 com 30,74 m² contendo: Um quarto, banheiro social, cozinha e área de serviço.

O prédio contará com portão eletrônico, interfone e elevador.

Studios com 1 vaga de garagem cada.

Fotos

Plantas

Características

Elevador

Interfone

Portão Eletrônico

Veja Também